Sheen Road, TW9
KEY FEATURES
- Three/ Four Bedroom Townhouse
- Unfurnished
- Garden
- 0.3 miles to Richmond Station
- Central Location
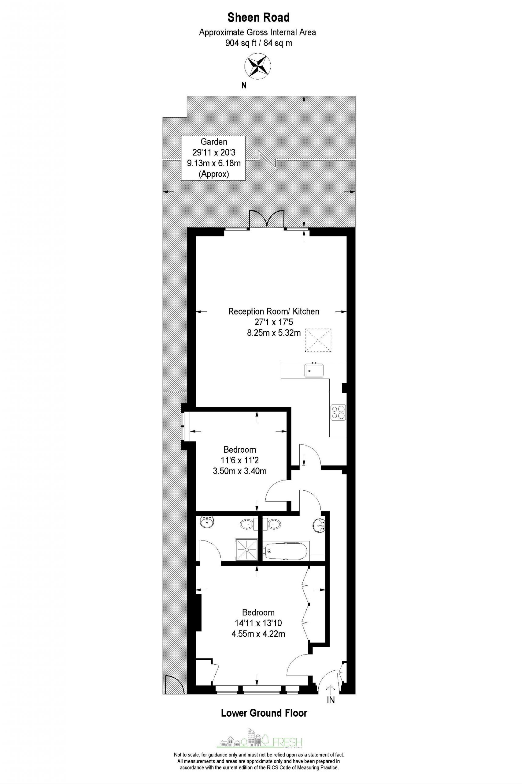
- Over 1,200 sq. ft.
FULL DETAILS
Nestled in one of London’s most coveted enclaves, this Grade II listed townhouse is a masterclass in elegance, heritage, and modern refinement. Impeccably restored and finished to the highest standard, this three/four-bedroom residence spans over four floors and over 1,200 sq. ft. of light-filled living space.
Step inside to discover a stunning open-plan kitchen and reception area, where period charm meets contemporary sophistication. High ceilings, sash windows, and bespoke finishes create a sense of grandeur, while the seamless flow to a private patio garden offers a tranquil retreat in the heart of the city.
Upstairs, generously proportioned bedrooms offer serene sanctuaries, with the potential for a fourth bedroom or home office to suit your lifestyle. Every detail has been thoughtfully curated-from the handcrafted cabinetry to the luxurious bathrooms-ensuring comfort and style in equal measure.
Positioned in Richmond town centre, you are mere moments from the boutiques, cafés, and fine dining of this vibrant riverside community. Richmond Station (National Rail and Underground) is just a five-minute stroll away, placing Central London and Heathrow within easy reach.
Whether you're a discerning couple seeking a refined urban haven or a small family ready to embrace the best of London living, this exquisite home offers unparalleled convenience, charm, and character.Offered to the market unfurnished and available from the 24th of April. Parking permits available through Richmond Council.
Useful Info:
Council Tax (Richmond): Band F
Deposit: 5 Weeks of the Agreed Rent
Holding Deposit: 1 Week of the Agreed Rent
























