Dancer Road, Richmond, TW9
KEY FEATURES
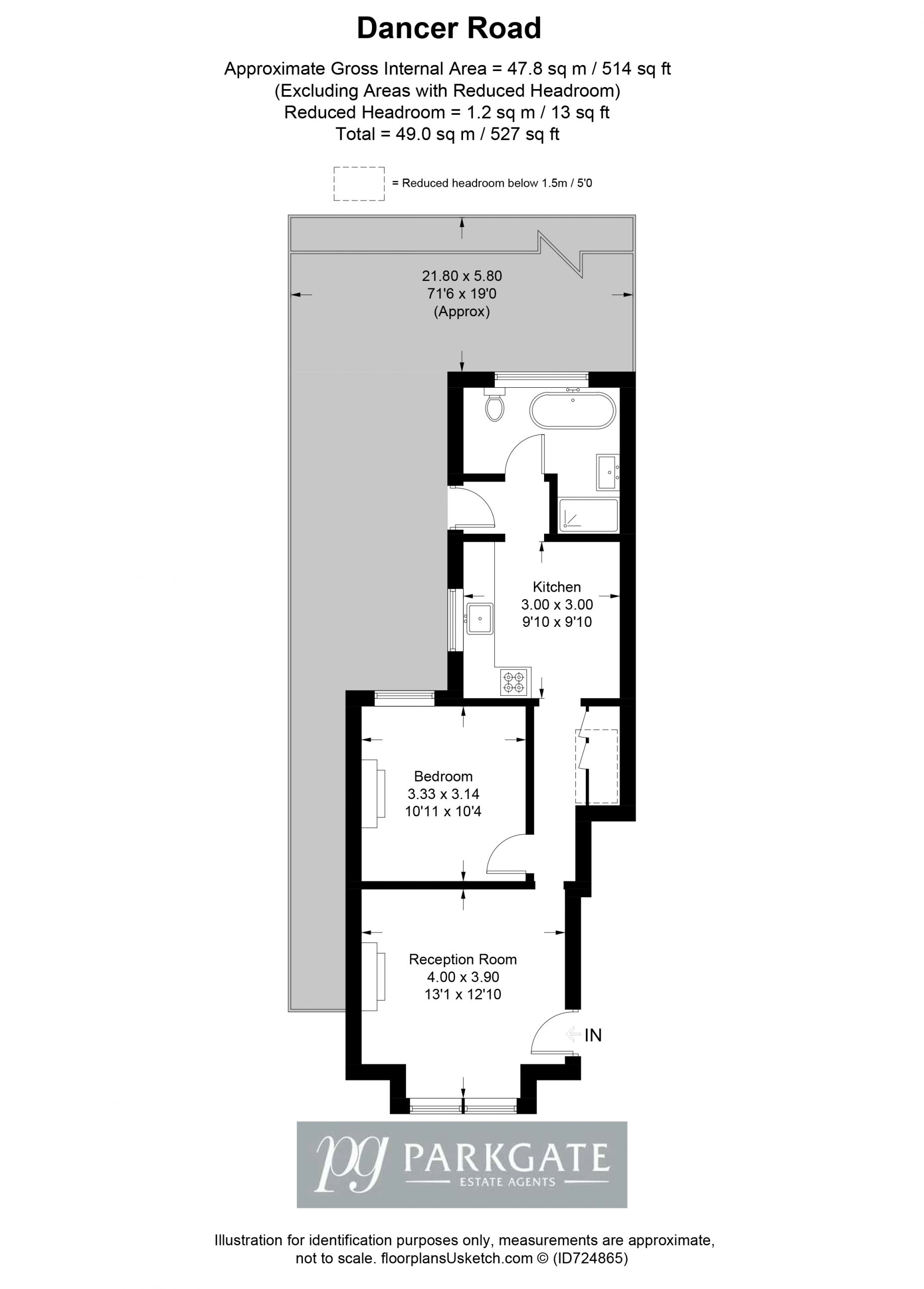
- One Bedroom
- Private Garden
- Unfurnished
- Beautifully Finished
- EPC Rating: D
FULL DETAILS
Introducing this beautifully presented, light and bright one bedroom garden flat. Finished to a good standard throughout, the accommodation consists of a bright reception room with feature fireplace, contemporary kitchen, spacious double bedroom and family bathroom with bath and separate shower. The flat also boasts plenty of built in storage, and a large private west facing rear garden (with side access).
Ideally located on an attractive residential road of Victorian homes, this stylish flat is located less than half a mile from North Sheen station and only 0.8 miles to Richmond station and the many amenities the town centre has to offer. On street permit parking available.
Offered to the market unfurnished, and available from 12th of September.
Useful Info:
Holding Deposit: 1 Week of the Agreed Rent
Deposit: 5 Weeks of the Agreed Rent
Council Tax (Richmond): Band C









